Scoprite questa splendida soluzione quadrifamiliare indipendente nella zona residenziale di Trambacche, nel comune di Veggiano. Immersa in un contesto tranquillo e verdeggiante, la proprietà si distingue per il suo magnifico giardino privato di circa 470 mq: uno spazio perfettamente piantumato e curato nei dettagli che regala privacy assoluta ed è ideale sia per momenti conviviali all’aperto dove trovano posto barbecue in muratura e un l’elegante gazebo sia per rilassarsi.
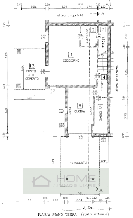
Costruita nel 1999 e mantenuta con la massima cura, l'immobile si sviluppa su tre piani fuori terra. Al piano terra troverete una luminosa zona giorno composta da un'accogliente cucina separata e un soggiorno dotato di caminetto, ideale per le serate in famiglia o con amici. Inoltre, sono presenti una pratica lavanderia, un ripostiglio/dispensa ed un bagno completo con doccia. Dal soggiorno si accede ad un porticato che offre la possibilità di godere del giardino.
Salendo al primo piano, troverete due camere da letto: una matrimoniale e una doppia ben illuminata; completano il piano anche un secondo bagno. Il secondo ed ultimo piano vanta un sottotetto versatile che può essere utilizzato come area hobby o relax oppure trasformato in ulteriori spazi abitativi.
La casa viene proposta parzialmente arredata con possibilità di accordo sui mobili presenti direttamente con i proprietari; tutte le utenze sono autonome, l'immobile è disponibile da subito e senza alcuna spesa condominiale. Completa la proprietà un comodo posto auto coperto direttamente collegato all’ingresso interno.
Veggiano è strategicamente posizionata tra Padova e Vicenza: servizi essenziali raggiungibili rapidamente così come scuole primarie/secondarie, supermercati e piste ciclabili immersi nel verde dei Colli Euganei. La tranquillità del quartiere rende questo immobile perfetto per famiglie o chi desidera vivere lontano dal caos cittadino ma vicino a ogni comfort quotidiano.
Non lasciarti sfuggire questa rara opportunità! Contattateci oggi stesso presso la nostra agenzia per organizzare una visita.
Il posizionamento sulla mappa è indicativo, tutti i dati e le informazioni contenute e indicate nel presente annuncio non costituiscono elemento contrattuale.
Costruita nel 1999 e mantenuta con la massima cura, l'immobile si sviluppa su tre piani fuori terra. Al piano terra troverete una luminosa zona giorno composta da un'accogliente cucina separata e un soggiorno dotato di caminetto, ideale per le serate in famiglia o con amici. Inoltre, sono presenti una pratica lavanderia, un ripostiglio/dispensa ed un bagno completo con doccia. Dal soggiorno si accede ad un porticato che offre la possibilità di godere del giardino.
Salendo al primo piano, troverete due camere da letto: una matrimoniale e una doppia ben illuminata; completano il piano anche un secondo bagno. Il secondo ed ultimo piano vanta un sottotetto versatile che può essere utilizzato come area hobby o relax oppure trasformato in ulteriori spazi abitativi.
La casa viene proposta parzialmente arredata con possibilità di accordo sui mobili presenti direttamente con i proprietari; tutte le utenze sono autonome, l'immobile è disponibile da subito e senza alcuna spesa condominiale. Completa la proprietà un comodo posto auto coperto direttamente collegato all’ingresso interno.
Veggiano è strategicamente posizionata tra Padova e Vicenza: servizi essenziali raggiungibili rapidamente così come scuole primarie/secondarie, supermercati e piste ciclabili immersi nel verde dei Colli Euganei. La tranquillità del quartiere rende questo immobile perfetto per famiglie o chi desidera vivere lontano dal caos cittadino ma vicino a ogni comfort quotidiano.
Non lasciarti sfuggire questa rara opportunità! Contattateci oggi stesso presso la nostra agenzia per organizzare una visita.
Il posizionamento sulla mappa è indicativo, tutti i dati e le informazioni contenute e indicate nel presente annuncio non costituiscono elemento contrattuale.
Mappa
Contattaci
INFORMAZIONI EXTRA
AMBIENTI
| Soggiorno | |
| Cucina | |
| Ripostigli | 1 |
| Poggioli/balconi | 1 |
| Giardino | |
| Posto auto | 1 |
| Lavanderia | |
| Porticato | |
| Sottotetto |
LIVELLI & COMFORT
| Livelli | Piano terra , Primo piano , Ultimo piano |
| Aria condizionata | |
| Camino | |
| Riscaldamento autonomo | |
| Allarme | |
| Animali ammessi | |
| Ingresso indipendente | |
| Numero accessi carrai | 1 |
| Numero portoni | 2 |
| Porta blindata | |
| Zanzariere |


